为实现土地资源有效利用,提升住宅小区空间环境品质,酒店偷拍 人民政府申请开展主城区A050901管理单元控制性详细规划导则(以下简称控规导则)(武汉电影制片厂片E2地块)修改工作。现根据《城市、镇控制性详细规划编制审批办法》、《武汉市控制性详细规划管理规定》等相关规定,就控规导则修改征求规划地段内利害关系人意见,公示期间如有意见或建议可依法行使陈述、申辩以及申请听证等权利,逾期不申报的,视为放弃上述权利。
项目名称:主城区A050901管理单元(武汉电影制片厂E2地块)控制性详细规划导则修改方案
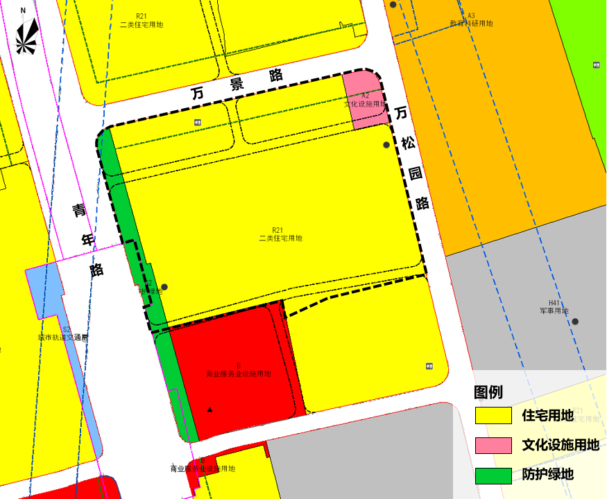
四至范围:东至万松园路,南至规划公共通道,西至青年路,北至规划道路(万景路)。
申请修改内容:拟取消地块中部8米宽南北向公共通道(详见附图)。
公示日期:2025年09月02日——2025年09月15日(公告期为十个工作日)
(联系电话:027-85779279)
原控规:

调整后:
